Q641TC-16C 气动陶瓷球阀
气动陶瓷球阀--产品概述:Q641TC-16C 气动陶瓷球阀的阀体内部与介质接触部分(包括球体及阀体内衬)均采购高性能结构陶瓷材料,在火电厂脱硫脱硝、气力除灰、化工冶金、多晶硅硅粉气力输送等各种高腐蚀、高磨损、高冲压等。
气动陶瓷球阀--主要性能特点:
1. 阀门壳体采用碳钢或不锈钢材料,采用三段式结构设计,结构简单可靠,并能保护内部陶瓷部件免受损坏。
2. 阀门球体及与介质接触的所有部位均内衬结构陶瓷材料,高纯氧化铝陶瓷和氧化锆陶瓷具有耐腐蚀性能,在除氢酸外的绝大部分强腐蚀酸碱介质中都不会腐蚀,作为耐腐蚀阀门,在众多耐腐蚀领域
3. 高纯氧化铝陶瓷和增韧氧化锆陶瓷除了具有耐腐蚀性能外,同样具有硬度(洛氏硬度HRA>88,仅次于金刚石等少数几种材质), 因此在各种含有固体颗粒的高冲刷高磨损工况中,可以长期使用而不会被磨损。气动陶瓷球阀--应用领域:
1. 火电厂烟气脱硫脱硝石灰水、石灰石浆液、石膏浆液
2. 火电厂气力除灰
3. 多晶硅硅粉气力输送
4. 冶金粉末气力输送
5. 湿法冶金硫酸与矿砂混合物
6. 其他高腐蚀、高磨损、高冲刷工况
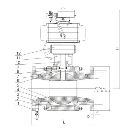
气动陶瓷球阀--主要零部件材料:
主体:碳钢(A105)、不锈钢(F304,F316,F304L,F316L)等阀球:结构陶瓷阀座:结构陶瓷填料:柔性石墨,PTFE公称通径:DN15-DN300(1/2"-12")公称压力:PN6-PN100适用温度:-29~+230℃操作方式:手柄,蜗轮,气动,电动,电液联动等适用介质:各种高腐蚀、高磨损、高冲刷介质气动陶瓷球阀--主要外形和连接尺寸:
型号 | 规格 | H | L | D | D1 | D2 | n-d | b | f |
DN | NPS |
Q41TC-150C/P/R | 15 | 1 /2" | 185 | 108 | 90 | 60.3 | 34 | 4-M12 | 11.6 | 2 |
Q41TC-150C/P/R | 20 | 3 /4" | 194 | 117 | 100 | 69.9 | 53 | 4-M12 | 13.2 | 2 |
Q41TC-150C/P/R | 25 | 1" | 198 | 127 | 110 | 79.4 | 50.8 | 4-M12 | 14.7 | 2 |
Q41TC-150C/P/R | 32 | 1-1/4" | 212 | 140 | 115 | 88.9 | 64 | 4-M12 | 16.3 | 2 |
Q41TC-150C/P/R | 40 | 1-1/2" | 224 | 165 | 125 | 98.4 | 73 | 4-M12 | 17.9 | 2 |
Q41TC-150C/P/R | 50 | 2" | 235 | 178 | 150 | 120.7 | 92 | 4-M16 | 19.5 | 2 |
Q41TC-150C/P/R | 65 | 2-1/2" | 356 | 190 | 180 | 139.7 | 105 | 4-M16 | 22.7 | 2 |
Q41TC-150C/P/R | 80 | 3" | 377 | 203 | 190 | 152.4 | 127 | 4-M16 | 24.3 | 2 |
Q47TC-150C/P/R | 100 | 4" | 407 | 229 | 230 | 190.5 | 157 | 8-M16 | 24.3 | 2 |
Q47TC-150C/P/R | 125 | 5" | 540 | 356 | 255 | 215.9 | 186 | 8-M20 | 24.3 | 2 |
Q47TC-150C/P/R | 150 | 6" | 540 | 394 | 280 | 241.3 | 216 | 8-M20 | 25.9 | 2 |
Q47TC-150C/P/R | 200 | 8" | 650 | 457 | 345 | 298.5 | 270 | 8-M20 | 29.0 | 2 |