LMS系列 双向螺旋闸门
LMS双向螺旋闸门详细资料:
一、产品用途:
螺旋闸门是一种粉料、晶粒料、颗粒料及小块物料的流量或输送量的主要控制设备,广泛使用在冶金、矿山、建材、粮食、化工等行业控制流量变化或迅速切断。
二、 产品特点:
LMS双向螺旋闸门具有结构简单、操纵灵活、重量轻、无卡阻、特别适用于各类固体物料和50mm左右块状、团状物料的输送及流量调节,安装不受角度限制,操作方便,能随时调整尺度,可双向操作,简单灵活。材质有碳钢、不锈钢,并可按客户需求定做各种非标螺旋闸门。
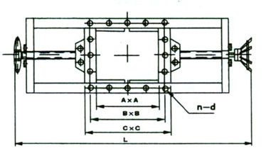
三、产品外形连接尺寸:


| 类别 | A×A1 | B×B1 | C×C1 | L | H | N-d | 重量(kg) |
| 单向 | 200×200 | 256×256 | 296×296 | 820 | 100 | 8-Φ12 | 62 |
| 245×245 | 305×715 | 341×751 | 1620 | 100 | 8-Φ14 | 68 |
| 250×250 | 306×306 | 346×346 | 930 | 100 | 8-Φ14 | 70.5 |
| 300×300 | 356×356 | 396×396 | 1050 | 100 | 8-Φ14 | 81 |
| 400×400 | 456×456 | 496×496 | 1250 | 100 | 12-Φ14 | 114 |
| 450×450 | 510×510 | 556×556 | 1350 | 120 | 12-Φ18 | 130 |
| 490×490 | 550×550 | 596×596 | 1440 | 120 | 16-Φ18 | 147 |
| 500×500 | 560×560 | 606×606 | 1500 | 120 | 16-Φ18 | 153 |
| 600×600 | 660×660 | 706×706 | 1710 | 120 | 16-Φ18 | 178 |
| 700×700 | 770×770 | 820×820 | 1940 | 140 | 20-Φ18 | 213 |
| 800×800 | 870×870 | 920×920 | 2140 | 140 | 20-Φ18 | 257 |
| 900×900 | 974×974 | 1030×1030 | 2410 | 160 | 24-Φ18 | 325 |
| 980×980 | 1054×1054 | 1110×1110 | 2570 | 160 | 24-Φ23 | 392 |
| 1000×1000 | 1074×1074 | 1130×1130 | 2610 | 160 | 24-Φ23 | 428 |
| 双向 | 600×600 | 660×660 | 706×706 | 2010 | 120 | 16-Φ18 | 200 |
| 600×1000 | 660×1074 | 706×1130 | 2870 | 120 | 20-Φ23 | 290 |
| 700×700 | 770×770 | 820×820 | 2130 | 140 | 20-Φ18 | 290 |
| 800×800 | 870×870 | 920×920 | 2240 | 140 | 20-Φ18 | 310 |
| 900×900 | 974×974 | 1030×1030 | 2660 | 160 | 20-Φ23 | 380 |
| 1000×1000 | 1074×1074 | 1130×1130 | 2870 | 160 | 24-Φ23 | 460 |
| 1100×1100 | 1180×1180 | 1240×1240 | 3120 | 180 | 28-Φ23 | 500 |
| 1200×1200 | 1280×1280 | 1340×1340 | 3310 | 180 | 32-Φ23 | 540 |
注: LMD-单向 I-手轮 Ⅱ-链轮,距地面小于1.7米用手轮,大于1.7米用链轮
链条节数M=0.105X-113(X是丝杆中心离地面度度)