上海网野阀门制造有限公司
产品中心PRODUCT SHOW

致力于产品的良好用户体验、有效的网络营销效果而努力

MBX 密闭式斜插板阀

  • 密闭式斜插板阀适用于密闭性要求较高的除尘气力输送管道,调节或切断物料流量的主要控制设备,具有结构简单、重量轻、无卡阻、操作灵活等优点,广泛地应用于冶金、矿山、建材、玻璃等行业系统中,控制物料的流量调节或切断作用。
立即咨询
全国热线135 2453 5400

详情介绍

MBX 密闭式斜插板阀

密闭式斜插板阀概述:
密闭式斜插板阀适用于密闭性要求较高的除尘气力输送管道,调节或切断物料流量的主要控制设备,具有结构简单、重量轻、无卡阻、操作灵活等优点,广泛地应用于冶金、矿山、建材、玻璃等行业系统中,控制物料的流量调节或切断作用。
密闭式斜插板阀主要性能:
介质流速:≤8m/s 工作温度:≤130℃
适用介质:无粘度的粉尘气体、固体粉料、小颗粒物料。
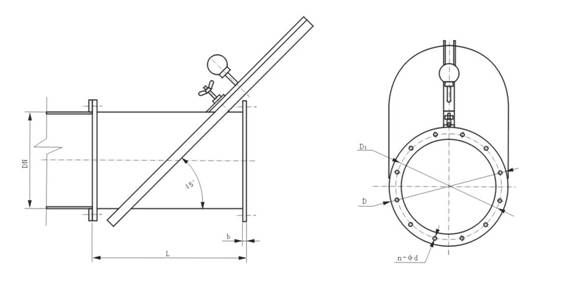
密闭式斜插板阀可水平或垂直安装,但气流方向必须和阀体上的箭头方向一致,水平管道上插板应以45度顺气流安装,在垂直管道(气流向上)上插板以45度逆气安装。其公称直径指管道外径值。
密闭式斜插板阀适用于密闭性要求较高的除尘气力输送管道,调节或切断物料流量的主要控制设备,具有结构简单、重量轻、无卡阻、操作灵活等优点。 
/up_files/image/sz/2017/05/27/72045122.jpg
密闭式斜插板阀主要外形及连接尺寸表:

型 号

1

2

3

4

5

6

7

8

9

10

11

12

DN

100

125

140

150

180

200

210

220

250

280

300

350

D

196

221

236

346

376

396

306

316

346

376

396

446

D1

156

181

196

206

236

256

266

276

306

336

356

406

N-Φd

8-Φ10

8-Φ10

8-Φ10

8-Φ12

8-Φ12

8-Φ10

8-Φ12

8-Φ12

12-Φ14

12-Φ14

12-Φ14

12-Φ14

L

280

300

320

330

360

380

390

400

430

460

480

590

b

6

8

密闭式斜插板阀订货知
订货时请填写《规格书》或注明以下内容:
一、若订货前还未选定型号,请向我们提供您的使用参数:1.公称通径、额定流量系数KV,
2.流体性质(包括公称压力、温度、粘度或酸碱性),3.阀作用形式(电-关式或电-开式),4.流量特性,
5.阀前、阀后压力,6.阀体、阀芯材料,7.输入信号,8.是否带附件,说明附件型号。以便我们的为您正确选型。
二、若已经由设计单位选定我公司的产品型号,请按型号直接向我司销售部订购;
三、当使用的场合非常重要或管路比较复杂时,请您尽量提供设计图纸和详细参数,由上海上兆阀门制造有限公司专家为您审核把关。


标签:

135 2453 5400

全国服务热线

Copyright © 2024 上海网野阀门制造有限公司 All Rights Reserved. 沪ICP备17008218号
上海网野阀门制造有限公司扫一扫咨询微信客服
在线客服
服务热线

服务热线

135 2453 5400

微信咨询
上海网野阀门制造有限公司
返回顶部