SRBB 高低平底篮式过滤器
一、高低平底篮式过滤器--产品概述
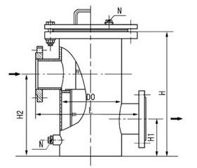
SRBB 高低平底篮式过滤器主要由挡管、筒体、滤篮、法兰、法兰盖及紧固件组成。当流体通过筒体进入滤篮后,固体杂质颗粒被阻挡在滤篮内,而洁净的流体通过滤篮过滤由过滤器出口排出。当需要清洗时,旋开筒体底部螺塞排除流体,拆卸法兰盖,取出滤篮,清洗后重新放入即可。
二、高低平底篮式过滤器--主要尺寸
| 公称通径(DN) | 主要尺寸 |
| ф | L | H | H1 | W |
| 20/25 | 115 | 260 | 250 | 150 | M16 |
| 32 | 168 | 350 | 285 | 180 | M16 |
| 40 | 219 | 420 | 340 | 230 | M16 |
| 50 | 219 | 420 | 370 | 280 | M16 |
| 65 | 219 | 420 | 425 | 285 | M16 |
| 80 | 219 | 480 | 425 | 285 | M16 |
| 100 | 273 | 480 | 520 | 365 | M16 |
| 150 | 273 | 500 | 580 | 380 | M16 |
| 200 | 325 | 550 | 670 | 460 | M16 |
| 250 | 425 | 750 | 860 | 625 | M22 |
