

X44H型 金属硬密封提升式旋塞阀是近年来发展比较快的新型旋塞阀,它采用了先提升后启闭的阀门操作方式,大大减少了旋塞阀的启闭力矩,而且不同于传统旋塞阀采用矩形缩径通道,该阀门通常采用圆形通道,使旋塞阀的流体阻力大大减少,金属硬密封提升式旋塞阀兼有球阀与闸阀的有点,能用于高温、高压工况,大大扩展了旋塞阀的使用范围。
1、X44H 金属硬密封提升式旋塞阀启闭时先提升旋塞,使旋塞与阀座密封面相脱离,然后 90°旋转旋塞,使阀门开启或关闭。由于阀门在启闭过程中旋塞与阀座相脱离,故阀门的启闭非常轻松,而且密封面在开启或关闭过程中不易擦伤,阀门使用寿命长。
2、X44H 金属硬密封提升式旋塞阀无论处在开启状态或关闭状态,密封面均受到保护,不受介质冲刷,密封紧密可靠。
3、普通旋塞阀采用矩形流道,且流道面积缩减,有较大的流体阻力损失,而金属硬密封提升式旋塞阀采用与管道截面积相同的圆形通道,流体阻力最小。
4、X44H金属硬密封提升式旋塞阀结构紧凑,体积小,与闸阀相比,阀门的高度尺寸大大减小,与截止阀相比,流体阻力大大减小。
5、与普通旋塞阀相比,金属硬密封提升式旋塞阀适用的压力及温度范围更大。
6、X44H 金属硬密封提升式旋塞阀两侧阀座密封面均可密封,阀门的安装与使用不受介质流向的限制。
7、阀座密封面凸起,便于密封面清洗,密封面上不易积存结晶介质或固体颗粒。
8、X44H 金属硬密封提升式旋塞阀关闭时,可通过手轮和阀杆对阀座密封面加压,通过加大密封比压,可使旋塞阀具有更好的密封性能。
三、金属硬密封提升式旋塞阀--性能参数:
| 设计与制造 | 结构长度 | 配管法兰 | 压力-温度等级 | 试验与检验 | 适用温度 | 适用介质 |
| API 599、 API 6D、 Q/ZCD01-2000 | ANSI B16.10、 GB/T15188.1、 Q/ZCD 01-2000 | JB/T74~90、 GB/T9112~9124、 HG 20592~20635、 ANSI B16.5、 SH3406 | JB/T74、 GB/T9124、 HG 20604~20625、 ANSI B16.34、 SH 3406 | API598、 JB/T9092 | 425℃ | 水、蒸汽、油品等 |
| 阀 体 | WCB | CF8 | CF3 | CF8M | CF3M |
| 旋 塞 | CF8 | CF8 | CF3 | CF8M | CF3M |
| 阀杆及内件 | 2Cr13 | 0Cr18Ni9 (304) | 00Cr19Ni10 (304L) | 0Cr17Ni12Mo2 (316) | 00Cr17Ni14Mo2 (316L) |
| 填 料 | 柔性石墨 | ||||
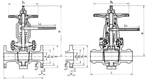
| DN | NPS | L | d | D | D1 | D2 | b | z×φd | f | L0 | H | D0 | 重量/kg | ||
| (mm) | (in) | RF | RJ | 堆焊 | |||||||||||
| 40 | 1 3/4 | 222 | 235 | 222 | 38 | 127 | 99 | 73 | 15 | 4×φ15 | 1.6 | 200 | 210 | 200 | 10 |
| 50 | 2 | 267 | 280 | 267 | 50 | 152 | 121 | 92 | 16 | 4×φ19 | 1.6 | 250 | 260 | 200 | 13 |
| 65 | 2 1/2 | 298 | 311 | 305 | 64 | 178 | 140 | 105 | 18 | 4×φ19 | 1.6 | 250 | 300 | 200 | 17 |
| 80 | 3 | 343 | 356 | 330 | 76 | 190 | 153 | 127 | 20 | 4×φ19 | 1.6 | 300 | 330 | 250 | 23 |
| 100 | 4 | 432 | 445 | 356 | 100 | 229 | 191 | 157 | 24 | 8×φ19 | 1.6 | 300 | 350 | 300 | 33 |
| 125 | 5 | 508 | 521 | 381 | 125 | 254 | 216 | 186 | 24 | 8×φ22 | 1.6 | 330 | 370 | 300 | 62 |
| 150 | 6 | 533 | 546 | 394 | 150 | 279 | 242 | 216 | 26 | 8×φ22 | 1.6 | 330 | 440 | 350 | 95 |
| 200 | 8 | 635 | 648 | 457 | 201 | 343 | 299 | 270 | 29 | 8×φ22 | 1.6 | 350 | 550 | 350 | 160 |
| 250 | 10 | 787 | 800 | 533 | 252 | 406 | 362 | 324 | 31 | 12×φ25 | 1.6 | 400 | 650 | 400 | 278 |
| 300 | 12 | 914 | 927 | 610 | 303 | 483 | 432 | 381 | 32 | 12×φ25 | 1.6 | 450 | 750 | 400 | 430 |
| 350 | 14 | 978 | 991 | 686 | 337 | 533 | 476 | 413 | 35 | 12×φ29 | 1.6 | 500 | 800 | 450 | 620 |
| DN | NPS | L | d | D | D1 | D2 | b | z×φd | f | L0 | H | D0 | 重量/kg | ||
| (mm) | (in) | RF | RJ | 堆焊 | |||||||||||
| 40 | 1 3/4 | 241 | 254 | 241 | 38 | 156 | 115 | 73 | 21 | 4×φ22 | 1.6 | 250 | 210 | 250 | 14 |
| 50 | 2 | 293 | 299 | 267 | 50 | 165 | 127 | 92 | 22.5 | 8×φ19 | 1.6 | 300 | 260 | 250 | 20 |
| 65 | 2 1/2 | 330 | 346 | 305 | 64 | 190 | 149 | 105 | 25.5 | 8×φ22 | 1.6 | 350 | 300 | 300 | 25 |
| 80 | 3 | 387 | 403 | 330 | 76 | 210 | 169 | 127 | 29 | 8×φ22 | 1.6 | 350 | 330 | 300 | 35 |
| 100 | 4 | 457 | 473 | 356 | 100 | 254 | 200 | 157 | 32 | 8×φ22 | 1.6 | 350 | 350 | 350 | 52 |
| 125 | 5 | 508 | 524 | 381 | 125 | 279 | 235 | 186 | 35 | 8×φ22 | 1.6 | 350 | 370 | 350 | 85 |
| 150 | 6 | 559 | 575 | 457 | 150 | 318 | 270 | 216 | 37 | 12×φ22 | 1.6 | 400 | 440 | 400 | 130 |
| 200 | 8 | 686 | 702 | 521 | 201 | 381 | 330 | 270 | 41.5 | 12×φ25 | 1.6 | 450 | 550 | 450 | 210 |
| 250 | 10 | 826 | 842 | 559 | 252 | 445 | 388 | 324 | 48 | 16×φ29 | 1.6 | 500 | 650 | 500 | 340 |
| 300 | 12 | 965 | 981 | 635 | 303 | 521 | 451 | 381 | 51 | 16×φ32 | 1.6 | 550 | 750 | 550 | 510 |
| 350 | 14 | 991 | 1007 | 762 | 337 | 584 | 515 | 413 | 54 | 20×φ32 | 1.6 | 600 | 800 | 600 | 750 |
| DN | NPS | L | d | D | D1 | D2 | b | z×φd | f | L0 | H | D0 | 重量/kg | ||
| (mm) | (in) | RF | RJ | 堆焊 | |||||||||||
| 40 | 1 3/4 | 318 | 318 | 241 | 38 | 156 | 115 | 73 | 22.5 | 4×φ22 | 6.4 | 250 | 230 | 250 | 20 |
| 50 | 2 | 330 | 333 | 292 | 50 | 165 | 127 | 92 | 25.5 | 8×φ19 | 6.4 | 300 | 280 | 250 | 28 |
| 65 | 2 1/2 | 381 | 384 | 330 | 64 | 190 | 149 | 105 | 29 | 8×φ22 | 6.4 | 350 | 320 | 300 | 35 |
| 80 | 3 | 444 | 447 | 356 | 76 | 210 | 169 | 127 | 32 | 8×φ22 | 6.4 | 350 | 350 | 300 | 45 |
| 100 | 4 | 508 | 511 | 432 | 100 | 273 | 216 | 157 | 38.5 | 8×φ25 | 6.4 | 400 | 380 | 350 | 68 |
| 125 | 5 | 559 | 562 | 508 | 125 | 330 | 267 | 186 | 44.5 | 8×φ29 | 6.4 | 400 | 400 | 400 | 100 |
| 150 | 6 | 660 | 663 | 559 | 150 | 356 | 292 | 216 | 48 | 12×φ29 | 6.4 | 450 | 470 | 450 | 155 |
| 200 | 8 | 794 | 797 | 660 | 201 | 419 | 349 | 270 | 55.5 | 12×φ32 | 6.4 | 500 | 580 | 500 | 255 |
| 250 | 10 | 940 | 943 | 787 | 252 | 508 | 432 | 324 | 63.5 | 16×φ35 | 6.4 | 550 | 680 | 550 | 390 |
| 300 | 12 | 1067 | 1070 | 838 | 303 | 559 | 489 | 381 | 67 | 20×φ35 | 6.4 | 600 | 780 | 600 | 570 |
| DN | NPS | L | d | D | D1 | D2 | b | z×φd | f | L0 | H | D0 | 重量/kg | ||
| (mm) | (in) | RF | RJ | 堆焊 | |||||||||||
| 40 | 1 3/4 | 356 | 356 | 305 | 38 | 178 | 124 | 73 | 32 | 4×φ29 | 6.4 | 300 | 250 | 300 | 28 |
| 50 | 2 | 381 | 384 | 368 | 50 | 246 | 165 | 92 | 39 | 8×φ26 | 6.4 | 350 | 300 | 300 | 39 |
| 65 | 2 1/2 | 432 | 435 | 419 | 64 | 244 | 191 | 105 | 42 | 8×φ29 | 6.4 | 400 | 340 | 300 | 49 |
| 80 | 3 | 470 | 473 | 381 | 76 | 241 | 191 | 127 | 39 | 8×φ26 | 6.4 | 450 | 370 | 350 | 63 |
| 100 | 4 | 559 | 562 | 457 | 100 | 292 | 235 | 157 | 45 | 8×φ32 | 6.4 | 450 | 400 | 400 | 95 |
| 125 | 5 | 610 | 613 | 559 | 125 | 349 | 280 | 186 | 51 | 8×φ35 | 6.4 | 500 | 430 | 450 | 140 |
| 150 | 6 | 737 | 740 | 610 | 150 | 381 | 318 | 216 | 56 | 12×φ32 | 6.4 | 550 | 500 | 500 | 215 |
| 200 | 8 | 813 | 816 | 737 | 201 | 470 | 394 | 270 | 64 | 12×φ39 | 6.4 | 600 | 520 | 550 | 350 |
| 250 | 10 | 965 | 968 | 838 | 252 | 545 | 470 | 324 | 70 | 16×φ39 | 6.4 | 700 | 620 | 600 | 540 |
| 300 | 12 | 1118 | 1121 | 965 | 303 | 610 | 534 | 381 | 80 | 20×φ39 | 6.4 | 700 | 820 | 650 | 790 |
注:①RF 表示突面法兰;RJ 表示环连接面法兰。②法兰尺寸按 ANSI B16.5 标准。根据用户要求,法兰尺寸也可按 GB/T 9112~9124、HG 20592~20635 和 SH3406 设计制造 。③Class150(PN20)~Class300(PN50) 旋塞阀中法兰一般采用螺栓螺母连接结构;Class600(PN110)~900(PN150) 旋塞阀中法兰一般采用压力自紧密封结构。


135 2453 5400
全国服务热线
扫一扫咨询微信客服服务热线
