K3Z 快装气动直角阀
快装气动直角阀--工作原理:
可调节活塞开度,限制行程,调节阀门流量,适用于所有型号的角座阀,另外在无控制气源、机械(电磁)故障时还可以用来紧急制动。
阀体材料:不锈钢SS316/SS304/黄铜
执行器材料: SS304不锈钢
阀盘密封:PTFE/FPM
阀杆密封:PTFE/FPM
活塞密封:FPM/NBR
快装气动直角阀--技术参数:
接口尺寸:DN10-DN65
螺纹:3/8‘’--21/2‘’
适用介质:水,中性气体和液体,酒精,油,有机溶剂,水蒸气,弱酸弱碱溶液。
介质温度:PTFE:-10℃-+200℃
FPM:-10℃-+100℃
顺流安装/逆流安装
控制介质:空气/中性气体
控制压力范围 :0.3-0.8MPa
工作压力:0-1.6MPa
快装气动直角阀--应用范围:
啤酒饮料灌装设备
制药及医疗设备
印染纺织
化工行业
气体工业
高温灭菌
发泡机械
水/污水处理
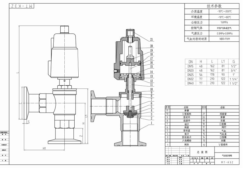
快装气动直角阀图纸:
