H3 焊接气动角座阀
焊接气动角座阀--产品介绍 :
气动角座阀以316不锈钢为主要制造材质,广泛用于啤酒,纺织印染和漂白,制药及医疗设备,食品加工,橡胶机械,有机和无机化工,清洗消毒高温灭菌,水处理等行业,适用于介质为水,液体,中性气体,水蒸汽,轻微腐蚀性气体及液体,与电磁阀及其他阀门相比,具有投资经济,使用安全,免维护,寿命长的特点。
焊接气动角座阀--选项参数:
气缸材质:不锈钢/聚酰胺 阀座密封:PTFE(温度-20℃~+180℃)/F46(-20℃~+220℃)
选配附件:电磁阀/限位开关反馈信号/电气定位器/空气过滤减压阀
控制形式直动式阀体不锈钢CF8M
结构角座阀阀芯材料不锈钢
接口G1/2-G2阀座密封PTEF
粘度600mm2/s活塞密封FKM/NBR
介质温度PTFE:-10℃~+180℃安装任何位置
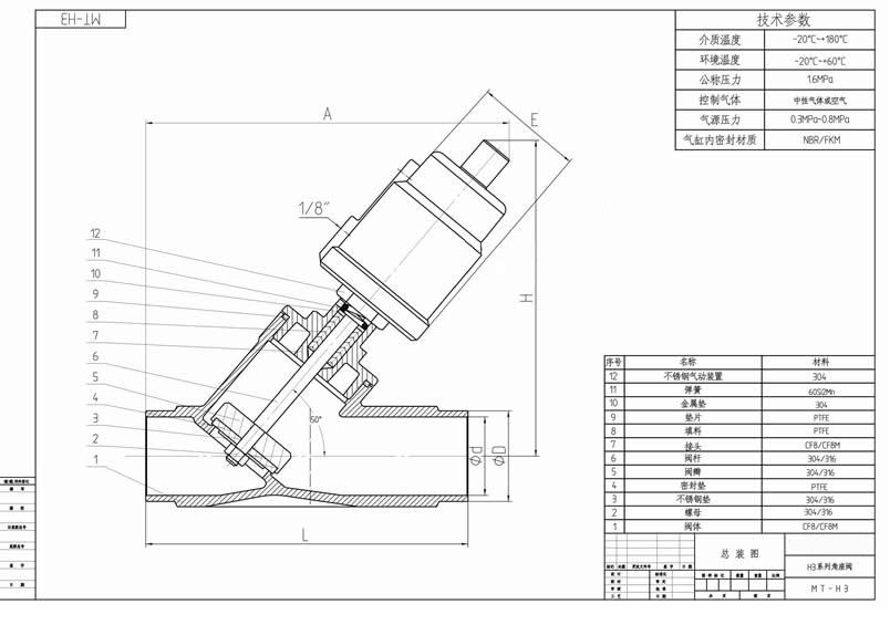
环境温度-10℃~+60℃控制介质空气 中性 气体 蒸汽焊接式气动角座阀零件表
名称材料名称材料
阀体CF8M锁紧螺母Hpb59-1
六角螺母1Cr18Ni9Ti指示杆Hpb59-1
阀芯密封垫PTFE常闭弹簧65Mn-D
阀芯体OCr178Ni12Mo2缸体CF8M
阀体密封垫FKM顶盖PC
连接CF8MY型圈FKM
阀杆OCr178Ni12Mo2O型圈NBR
阀杆密封套PTFE阀盖CF8M
阀杆密封圈PTFE含油轴承
压紧密封垫PTFE垫圈Hpb59-1
弹簧挡圈 活塞环FKM
密封弹簧65Mn-D活塞Hpb59-1 参数
接口
英寸内孔
mmKV值
m3/h最大工作
压力(bar)要求最小
气源压力(bar)执行机构
尺寸mm流向
G3/8133.70-164.040阀座上方
G1/2134.20-162.750阀座上方
G3/4208.00-162.750阀座上方
G12519.00-162.063阀座上方
G11/43227.50-162.063阀座上方
G11/24042.00-162.063阀座上方
G25052.00-162.063阀座上方
G21/26577.00-141.680阀座上方1.气动角座阀按汽缸可分为:
单作用和双作用 单作用(气动头通常为一个孔);工作原理;根据弹簧复位达到开启和关闭的作用,分为常开型与常闭型。
双作用(气动头通常为两个孔);工作原理:给气控制其开关。
压力范围:0-1.6Mpa
介质温度:-10 ℃ ~+180 ℃
环境温度:-10 ℃ ~+60 ℃
阀体材料:不锈钢
密封材料:聚四氟乙烯
执行机构外壳:聚酰按、不锈钢
气动角座阀在生活中的应用:
控制气体:中性气体,空气
控制液体:自动化工业控制流体、食品级乳工业、生活用水、普通管道流体介质等。
2.焊接气动角座阀--应用范围:
①,啤酒饮料等灌装设备/beer & drinks filling machinery;
②,印刷纺织/textile printing&dying;
③,气体工业/gas industry;
④,制药及医疗设备/pharmacy & medical equipment;
⑤,化工行业/chemical industry;
⑥,高温灭菌/disinfection;
⑦,发泡机械/frothing equipment;
⑧,水污染处理/water sewage disposal。
3.角阀工作原理:
在非工作状态下,由于弹簧的作用,阀门常开或常闭。当执行器活塞被压缩气体作用时,阀门打开或关闭,双作用形式靠压缩气体来控制阀门开关
⒉安装环境:
①,控制形式:直动式;
②,管道压力:MAX 1.6MPA(232psi);
③,控制压力:0.3-0.8MPA(43.5-116psi);
④,结构:角式
⑤,接口:DN10-DN100;
⑥,介质粘度:600MM2/S;
⑦,介质温度:-10度-+180度(PTFE);
⑧,环境温度:-10度-+60度;
⑨,安装位置:任意位置(360度任选位置安装)。
4.安装与拆卸:
①,连接阀门至管道,确保阀体所附箭头与流体方向一致(阀体外侧箭头代表流体流动方向,安装请遵循);
②,焊接式安装:焊接时请拆离执行器;
③,螺纹、法兰、快装式安装:可正常安装;
④,拆卸:拆卸前确保对阀门的气压已解除;轻卸;拆卸后保护好螺纹和密封材料;
⑤,阀体与管道连接紧固需要足够的扭矩力,个尺寸扭矩力值如下:DN15为40Nm,DN20为50Nm,DN25为70Nm,DN32为150Nm,DN40为150Nm,DN50为170Nm,DN80为240Nm,DN100为300Nm。
⑥,安装时,请确保管道内和接口处无残留物。
⑦,安装后,检测与连接处已密封完好,无泄漏,方可使用。
焊接气动角座阀图纸:
