


概述 固定球阀的球体,采用上、下两根阀杆固定,工作时,流体压力不会使球体向阀座移动,阀座不会承受过大压力而变形。阀杆部份设有自润滑轴承,减少磨擦,开关扭距小,两阀座均采用弹簧设预紧。密封采用聚氟乙烯镶入钢圈内,钢圈后部设有弹簧,保证阀座紧贴球体。当阀门中腔压力异常升高超过弹簧顶紧力,阀座后退脱离球体,达到自动泄压效果,压后阀座自动复位。结构的先进性使固定球阀的密封性能稳定操作省力,使用寿命长,极适用于长输管线和一般管线。
| Summary The sphere of Q47 type standing ball valve is fixed with upper and lower valve stems. When it works, for fluid pressure is unable to make sphere move towards valve base, the valve base won't be deformed for enduring over pressure. There is self-lubricating bearing seton the part of valve stem to reduce friction, and its switch-torque is small. Both valve bases are pertensioned by setting spring. Referring to sealing, adopt the way to inset polytetrafluoroethylene into steel-ring with a spring on its rear end, which can ensure valve base cling to sphere. When the cavity pressure in valve transnormally excesses spring tension, valve base will back off and separate from sphere to get the effect of automatic pressure release.The valve base will automatically reset after being pressed. Thanks to advanced structure, the standing ball valve has stable sealing performance, labor-saved operation and long using life. It is es-pecially applicable for long conveymg pipeline and general pipeline.
|
结构·功能·特点Construction.Functio.Features.
| 全通径设计 按照客户的要求可以提供全通径 或缩径阀门,全通径阀门具有与管子 内径完全一致的通道直径,减少涡流 便于清扫管道。 Full bore design According to the customer's demand,the fullbore orthe redu- ced bore can be provided. The f- ull bore valve has the diameter of channel completely equalto the in ner diameter of pipe to facilitat- e to clean the pipe.
阻塞与排泄功能 固定球阀采用弹簧预紧,阀座密 封为双活塞.利用话塞原理密封.上 下游侧的阀座使流体阻断.阀体中腔 装放空阀排空,阀底装有排污阀排污, Block & Bleed Function Fixed ball valve adopts spri- ng to pretighten.And seat sealis double pistons.lt adopts piston p- rinciple to seaI.Upstr-Eam and d- ownstream seats make fluid stop. And the emptying valve installed on the middle cavity is used to e- mpty and the blowdown valve in- stalled at the bottom of valve to c- lear off dirt to facili-tate to clean the pipe.
|
| 防火结构 万一发生火灾或异常升温使PT FE软化烧损时,阀座支承圈防火密封 面可以和球体接触.起到密封作用且 符合AP1607和AP16FA Fire-proof structure When the fire happens orthe temperatue unusually rises to m- ake PTFE soften to damage.the fireproof sealsurface of seat su- pported circle can contact with b- all to have seal function.This co- nforms to therequirements of A- Pl 607 and AP16FA.
防静电设计 采用铬镍不锈钢的弹簧和小球使 球体、阀杆和阀体之间相互导电,从 而把静电完全释放。 Anti-static design Chrome and nickelstainless- teel spring and small ball are ad- opted to make electroconductive among ball. Stem and body to co- mpletely releasestatic.
|
设计、制造标准 1、设计、制造按GB/T12237-89 2、连接法兰JB/T 79-94 3、阀门检查和试验按GB/T13927-89 | Standard for design and manufacture 1、DesignManafacfure According to GB/T 12237-89 2、FlangeDimensionAccording tojBfT 79-94 3、valve Check and Test According to GB/T 13927-89
|
主要零件材料Mater for main parts
公称压力Nominal PN(MPa)pressura | 产 品 型 号Product Type | |||||||||
主要零件材料 Parts Material | 阀体 Body | WCB | ZG1Cr18Ni9Ti | CF8 | CF3 | ZG1Cr18Ni- 12Mo2Ti | CF8M | CF3M | ||
球体、阀杆 Ball,Stem | 2Cr13 | 1Cr18Ni9Ti | 0Cr19Ni9- (304) | 00Cr19Ni11- (304L) | 1Cr18Ni12- Mo2Ti | 0Cr17Ni12- Mo(316) | 00Cr19Ni14- Mo2(316L) | |||
阀座 Seat | 四氟乙烯、对位聚苯 | |||||||||
适用工况 Applicable Condrtion | 适用介质 Applicable mediumt | 水、蒸汽、油品等 Water,Steam,Oil | 硝酸等腐蚀性介质 Netricalid Corrosive | 强氧化性介质 Oxgen medium | 醋酸等腐蚀性介质 Acetil acid coirosive medium | 尿素等腐蚀性介质 Urea corrosive medium | ||||
工作温度(℃) Working Temperatdre | -29~150(四氟乙烯) -28~300(对位聚葳) | |||||||||
试验压力 (MPa) Test pressure | 壳体 Shell | 1.5培 | ||||||||
密封(液) Sesl(liquid) | 1.1培 | |||||||||
密封(气) Sesl(gas) | 0.6MPa | |||||||||
蜗轮传动 Turbine | 在手动型号的Q后插“3”表示,示例:Q347F-16C Represeting by“3”inserted befere manual“Q” | |||||||||
气动 Pheumatic | 在手动型号的Q后插“6”表示,示例:Q647F-16C Represetingby“6”inserted befere manual“Q” | |||||||||
电动 Electric | 在手动型号的Q后插“9”表示.示例:Q947F-16C Represeting by“9”inserted befere manual“Q” | |||||||||
附注 Remark | 选用缩径球阀,在公祢通径数值后加S表示,示例:DN100S Selecting reduce Bore,insert“S”affer figure of DN. | |||||||||
如用户选用美标的阀门请在型号前加A.选用的压力为150Lb、300Lb、600Lb。


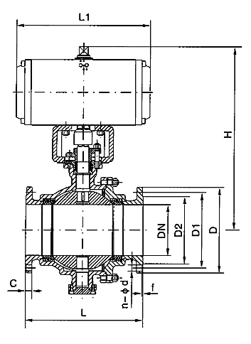
主要外形及连接尺寸Q647(F、N、P)-40(4.0MPa)Mani Outline and Connecting Flangs Size
公称通径 DN Nominal Size | 外形尺寸Outline Size | 连接法兰尺寸Connecting Flangs Size | 双作用式* 执行器型号 Actuator Model of Double-acting Type | |||||||
L |
L1 |
H |
D |
D1 |
D2 |
C |
f |
n-Φd | ||
50 | 178 | 190 | 260 | 165 | 125 | 99 | 20 | 3 | 4-Φ18 | GTD80 |
65 | 190 | 210 | 293 | 185 | 145 | 118 | 20 | 3 | 4-Φ18 | GTD90 |
80 | 203 | 247 | 323 | 200 | 160 | 132 | 20 | 3 | 8-Φ18 | GTD100 |
100 | 229 | 276 | 382 | 220 | 180 | 156 | 22 | 3 | 8-Φ18 | GTD115 |
125 | 356 | 348 | 468 | 250 | 210 | 184 | 22 | 3 | 8-Φ18 | GTD145 |
150 | 394 | 378 | 510 | 285 | 240 | 211 | 24 | 3 | 8-Φ22 | GTD160 |
200 | 457 | 524 | 655 | 340 | 295 | 266 | 24 | 3 | 12-Φ22 | GTD210 |
250 | 533 | 645 | 847 | 405 | 355 | 319 | 26 | 3 | 12-Φ22 | GTD255 |
300 | 610 | 715 | 980 | 460 | 410 | 370 | 28 | 4 | 12-Φ22 | GTD300 |
350 | 686 | 795 | 1085 | 520 | 470 | 429 | 30 | 4 | 12-Φ22 | GTD350 |
400 | 762 | 1860 | 1215 | 580 | 525 | 480 | 32 | 4 | 12-Φ22 | AW35 |
500 | 991 | 1860 | 1385 | 715 | 650 | 609 | 36 | 4 | 12-Φ22 | AW40 |
※注:系列球阀结构长度及连接法兰尺寸可根据JB/T79标准或用户要求设计制造。
※注:*根据不同阀门扭矩、使用介质适配或单作式的执行器型号可能有所不同,相关尺寸随之变化。
GT系列气动执行器可配球阀DN15~350,AW系列气动执行器可配球阀DN150~500。
Note:The structural length and connecting flange size of ball valve series can be designed and manufactured as per JB/T 79 standard or users' reqirements.
Note:*The relative siZes are subject to change responding to the difference in
valve torque,medium and model of single-acting actuator.Pneumatic actuator of GT series may fit ball valves of DN 15-350,and that of AW series may fit ball valves of DN 150~500,P19
主要外形及连接尺寸Q647(F、N、P)-(2.5MPa)
公称通径 DN Nominal Size | 外形尺寸Outline Size | 连接法兰尺寸Connecting Flangs Size | 双作用式* 执行器型号 Actuator Model of Double-acting Type | |||||||
L |
L1 |
H |
D |
D1 |
D2 |
C |
f |
n-Φd | ||
50 | 216 | 210 | 270 | 165 | 125 | 99 | 20 | 3 | 4-Φ18 | GTD90 |
65 | 241 | 247 | 309 | 185 | 145 | 118 | 22 | 3 | 4-Φ18 | GTD100 |
80 | 283 | 276 | 344 | 200 | 160 | 132 | 24 | 3 | 8-Φ18 | GTD115 |
100 | 305 | 348 | 421 | 235 | 190 | 156 | 24 | 3 | 8-Φ22 | GTD145 |
125 | 381 | 378 | 485 | 270 | 220 | 184 | 26 | 3 | 8-Φ26 | GTD160 |
150 | 403 | 432 | 559 | 300 | 250 | 211 | 28 | 3 | 8-Φ26 | GTD190 |
200 | 502 | 524 | 655 | 360 | 310 | 274 | 30 | 3 | 12-Φ26 | GTD210 |
250 | 568 | 648 | 847 | 425 | 370 | 330 | 32 | 3 | 12-Φ30 | GTD255 |
300 | 648 | 715 | 980 | 485 | 430 | 389 | 34 | 4 | 16-Φ30 | GTD300 |
350 | 762 | 795 | 1085 | 555 | 490 | 448 | 38 | 4 | 16-Φ33 | GTD350 |
400 | 838 | 1860 | 1215 | 620 | 555 | 503 | 40 | 4 | 16-Φ36 | AW35 |
500 | 991 | 1860 | 1385 | 730 | 660 | 609 | 44 | 4 | 20-Φ36 | AW40 |
主要外形及连接尺寸Q647(F、N、P)-40(4.0MPa)Mani Outline and Connecting Flangs Size
公称通径 DN Nominal Size | 外形尺寸Outline Size | 连接法兰尺寸Connecting Flangs Size | 双作用式* 执行器型号 Actuator Model of Double-acting Type | ||||||||
L |
L1 |
H |
D |
D1 |
D2 |
D3 |
C |
f |
n-Φd | ||
50 | 216 | 247 | 286 | 165 | 125 | 99 | 88×4 | 20 | 3 | 4-Φ18 | GTD100 |
65 | 241 | 276 | 330 | 185 | 145 | 118 | 110×4 | 22 | 3 | 4-Φ18 | GTD115 |
80 | 283 | 348 | 349 | 200 | 160 | 132 | 121×4 | 24 | 3 | 8-Φ18 | GTD125 |
100 | 305 | 378 | 421 | 235 | 190 | 156 | 150×4.5 | 24 | 3 | 8-Φ22 | GTD145 |
125 | 381 | 432 | 485 | 270 | 220 | 184 | 176×4.5 | 26 | 3 | 8-Φ26 | GTD160 |
150 | 403 | 524 | 582 | 300 | 250 | 211 | 204×4.5 | 28 | 3 | 8-Φ26 | GTD210 |
200 | 502 | 648 | 702 | 375 | 320 | 284 | 260×4.5 | 30 | 3 | 12-Φ26 | GTD255 |
250 | 568 | 715 | 895 | 450 | 385 | 345 | 313×4.5 | 32 | 3 | 12-Φ30 | GTD300 |
300 | 648 | 795 | 1040 | 515 | 450 | 409 | 364×4.5 | 34 | 4 | 16-Φ30 | GTD350 |
350 | 762 | 1860 | 1170 | 580 | 510 | 465 | 422×5 | 38 | 4 | 16-Φ33 | AW35 |
400 | 838 | 1860 | 1215 | 660 | 585 | 535 | 474×5 | 40 | 4 | 16-Φ36 | AW40 |
500 | 991 | - | - | 755 | 670 | 615 | 576×5 | 44 | 4 | 20-Φ36 | AW50 |
※注:系列球阀结构长度及连接法兰尺寸可根据JB/T79标准或用户要求设计制造。
※注:*根据不同阀门扭矩、使用介质适配或单作式的执行器型号可能有所不同,相关尺寸随之变化。
GT系列气动执行器可配球阀DN15~350,AW系列气动执行器可配球阀DN150~500。

135 2453 5400
全国服务热线
扫一扫咨询微信客服服务热线
